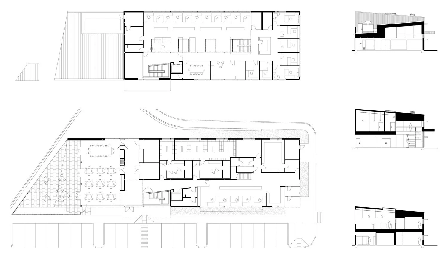
A city facility with views to the wetlands beyond

 

A brightly colored exterior wall celebrates the public nature of the building; draws visitors inside; and serves to separate the public lobby from a multi-purpose meeting and lunch room. Large north-facing windows at the second floor open office space afford views to wetlands beyond.

Project by Hutchison & Maul Architecture
Shops Building by Wagner Architects
City of Bothell, Completed 2011
Project Team: Robert Hutchison & Tom Maul, Principals-In-Charge, Mike Campbell, Greg Hale
Photography: Robert Hutchison